New Ground Floor Unit (2607 sq ft), Universal Building, Devonshire Street North, Manchester, M12

Property Type: | Property Features:

Property Details

Price: £ 2173

Year Built:

Floors: 0 of 5

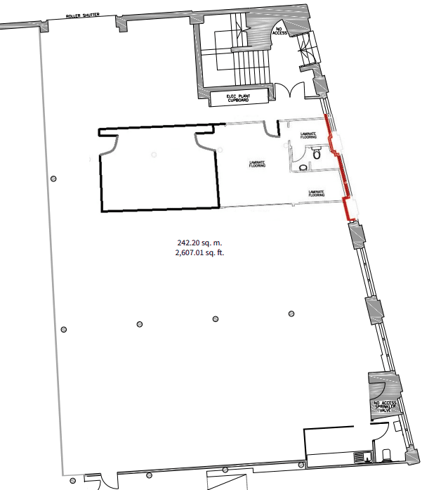
Size: 2607.01 sq ft./ 242.20 sq m.

Bedrooms:

Bathrooms:

Location Info

Address: Universal Building, Devonshire Street North

City: Manchester

Country: United Kingdom

Postcode: M12

Share Property

New Ground Floor Unit (2607 sq ft), Universal Building, Devonshire Street North, Manchester, M12

Tour

Play Video

Floorplans

Brochure

Located within the iconic Universal Building, this newly created ground-floor unit offers substantial, high-quality workspace ideal for creative, training, studio, light industrial and hybrid commercial occupiers seeking a well-connected Manchester location.

The unit forms part of a recent refurbishment and subdivision of a larger ground-floor space, delivering modern, efficient accommodation finished to a strong specification and ready for immediate occupation.

Accommodation

Extending to 2,607 sq ft, the unit provides generous and flexible accommodation comprising a large open-plan working area alongside two private offices, suitable for operational, production and administrative use.

The space is fully self-contained, providing occupiers complete control over their working environment.

Key Features

-Newly refurbished ground-floor unit
-Excellent natural light via large windows
-Brand-new electrical installation with plentiful power sockets
-Self-contained kitchenette
-Two WC facilities
-Two private office rooms
-Roller blinds fitted for privacy
-Electric shutter access
-Direct loading bay access with two loading points
-Ground-floor access ideal for clients, deliveries and goods handling
-Unfurnished, allowing flexible occupier fit-out

Location

-Situated on Devonshire Street North, the Universal Building benefits from a highly accessible city-fringe position:
-Moments from Ardwick Railway Station
-Approximately 0.7 miles from Manchester Piccadilly
-Manchester city centre within a 15-minute walk
-Excellent access to major road links and commercial districts

Security & Amenities

-CCTV surveillance
-On-site security guard
-Professionally managed building
-Established business community

Parking

-One allocated parking space included
-Additional parking available by arrangement

Terms

-Flexible lease terms available
-Rent, service charge and building insurance payable separately

AI-generated furnished images may be used for illustrative purposes only.